Consandolo - Villa con parco e terreno
€ 218.000
Argenta, Ferrara
Dettagli
Contratto Vendita
Rif Consandolo - Villa con parco e terreno
Prezzo € 218.000
Provincia Ferrara
Comune Argenta
Indirizzo Via Gresolo 13">
Vani 4
Camere 2
Bagni 2
Classe energetica
G (DL 192/2005)
EPI 592.72 kwh/m2 anno
Riscaldamento autonomo
Condizioni abitabile
Cucina semiabitabile
Consistenze
| Descrizione | Superficie | Sup. comm. |
|---|---|---|
| Principali | ||
| Immobile - piano terra | 240 Mq | 240 Mqc |
| Totale | 240 Mqc | |
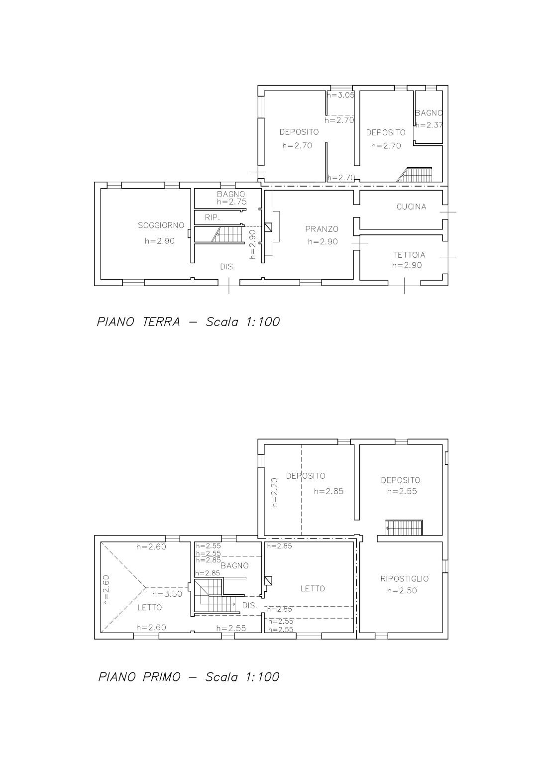
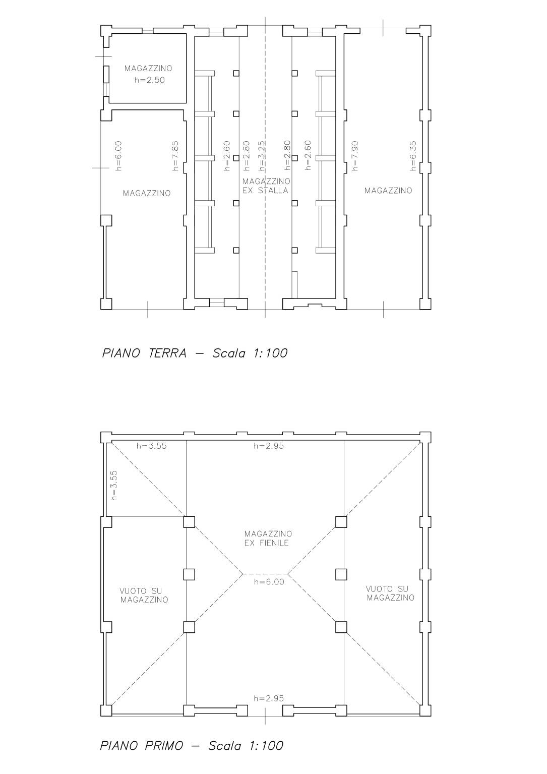
A Consandolo, comodo alla statale Ferrara Argenta, vendiamo VILLA su due livelli ed indipendente su 4 lati, circondata da 12.500 mq di parco piantumato e terreno. L'immobile si presenta in ottime condizioni ed è diviso in due unità abitative: la principale si compone al piano terra di ingresso, salone, sala da pranzo, cucina e bagno mentre al piano superiore di 2 ampie camere da letto matrimoniali e secondo bagno completo di vasca e doccia. L'abitazione secondaria, da ristrutturare, è disposta anch'essa su due livelli per complessivi 100mq circa. Completano la proprietà un ampio fienile suddiviso in tre zone principali ed un impianto fotovoltaico da 20kw (CHE PERMETTE DI OTTENERE UNA RENDITA DI EURO 8.000,00 ANNUALI PER IL PERIODO RIMANENTE DI CIRCA 8 ANNI). Classe energetica G (592,72 kwh/mq)
Richiedi maggiori informazioni
Mappa
Zoom della mappa
Apri con:
Apple Maps
Google Maps
Waze
Contattaci
Studio 99 - Intermediazione Immobiliare
Via Pomposa, 127B 44123 FERRARA (FE)
Via Pomposa, 127B 44123 FERRARA (FE)
P.IVA: 02035600382
+39 342 5651920






